3D Printed Coin Shuffleboard : 10 Steps (with Pictures) - batesountracentle
Introduction: 3D Written Mint Shuffleboard
Table Shuffleboard is a game of attainment common in North America. Similar to Curling, the object of the game is to slide the puck into zones near the end of the table to mark points. This 3D printed coin launcher is the errorless movable shovelboard game. Use pocket change equally a puck and get a game going with friends on whatever table.
The typical tabletop shuffleboard setup has a polished surface dusted with slimed beads. The pucks glide smoothly across and require precise see to it. This version ISN't as fancy, but the whole game fits in your pocket and can be played on any shelve that's handy.
Stride 1: Tools + Materials
- Fusion 360
- 3D Printer
-
I utilise a Prusa I3Mk3S for just nigh everything. It's the topper bang for your buck, in my opinion- very comfortably made, 3D printable replacement parts, accurate and reliable.
-
- 3D Print Filum
- I used nonproprietary PLA for this project.
- Rubber Stripe
- Any American English coin
Fusion 360 is liberate and it's awesome. I use it for everything I design and fabricate.
Student / Pedagog License (renew available all 3 years)
Hobbyist / Startup (renew free period of time)
Present's a yoke to the Fusion 360 model. It's constant quantity, so you can adjust the size by entering the breadth of whatsoever rubber ring you may have Handy.
http://a360.co/2xOFgk4
Follow along with this Instructable to model your have!
Step 2: Picture Tutorial
This TV explains the entire molding appendage. The rest of the Instructable explains the swear out with text and images, and goes into contingent just about 3D printing settings.
Measure 3: Coin Unveiling Cup
The coin cup is the part that holds a coin in place and launches information technology by way of a rubber band.
I started with a model of all the park American coins. In this screenshot you can see the atomic number 28 (the thickest coin) and the quarter (the unrivalled with the biggest diameter), but the penny and dime are there arsenic well. I made one file with all the coins to get a sense of what I should design that could launch them all.
The Fusion archive of the coin design is attached in this whole step. Download IT, then click "Upload" in the browser in Fusion to bring it in.
As always, I start a New Component to keep the model organized.
I create a outline on the XY origin sheet, then Cast/Include > Project, selecting the quarter to project that geometry in plan. This wish founde me a line I buns use to blueprint the cup.
I figured the best way to ensure that any of the coins would declivity into the cupful centred would be to make a pocket with a "V" shaped profile- that room any coin will fall into the middle when the launcher is tilted up.
I draw a seamed outline of the shape of the pocket, I'll reach constraints and dimensions along the sketch later.
The after part is the biggest strike and I deprivation to make a point it doesn't bog down in the air pocket, so I offset the perimeter of the circle by .5mm.
I use that offset circle to make all the lines tan to it. In the Outline Palette, I select Tangent and click wholly the straight lines on the inside followed aside the circle. This makes entirely the lines stick to the circle.
I use the Survey>Dimension joyride to make rational dimensions for all the features here. 120º for to each one lateral of the angled cup seems to pass wate sensory faculty. Everything else is synchronal at a depth of 6mm, which I think will give us enough to act with.
With that profile done, I prize Create > Extrude and extrude that visibility thusly that it meets the big top of the nickel. That gives me 1.95mm, so I add another .5mm thereto to make a point the nickel doesn't get stuck.
I create another sketch along the underside of the body I just made, closedown the open set out with a line of credit. This gives me a rectangle I can practice to give the mint transfuse some depth that is linked to the trunk I just made. That means that if I vary the germinal excrescence, this sketch will automatically shift.
Create > Extrude gives me a rectangular floor for the cup. I make that 3mm, which is a solid-state dimension for an FDM 3D printed partially.
I repeat this step happening the top of the cup, making that have 3mm thick every bit well.
Now I need a chase around the cup to guide the rubber band. To make this feature, I offset a plane from the top and one from the freighter, both at 1.5mm. I find this dimension to be almost the minimum I buttocks do with an FDM printer without the part breaking under stress.
Creating a sketch on incomparable of these newfound planes, I project the profiles of the inside and outside of the cup. Then I bisect the slope walls and append ad 3-tangent circle to give myself several profiles I can buoy enjoyment.
I use this embodiment to Extrude (Operation: Cut) this shape from one of the new planes to the other. This gives me a chase for the rubber band.
Step 4: Substructure With Parametric Controls
This model is parametric!
That means that its shape will automatically change to work with a rubber band of whatever length. Rubber bands come in so many shapes and sizes, and they burst sol well, I thought it would make sentiency to make up competent to easily change one valuate (width of rubber band) and watch the shape of the launcher update to work with information technology.
First, I make a new ingredient, then have a sketch using the bottom of the mint loving cup A the reference plane (you can click on any flat face and seduce a sketch extinct of it). The front will mechanically be projected if you do it that way, but it's very faint diagrammatically so you might not notice it.
Atomic number 3 usual, a rough outline of the affair I want to make bequeath suffice: a bigger rectangle with the origin plane roughly in the middle.
To by rights control the rectangle using my parameters (coming later) I'm releas to need a center line. I haulage a Line from the midpoint of the top line to the midpoint of the bottom line. I have it away I'm along the midpoint because the cursor snaps to the middle of the line and a blue triangle icon shows up.
I want this parametric rectangle to stay centered along the coin cup, so I attend Sketch Palette > Coincident and click the centerline I upright John Drew followed by the cartoon origin peak. This constrains the center line to the center of the coin cup part.
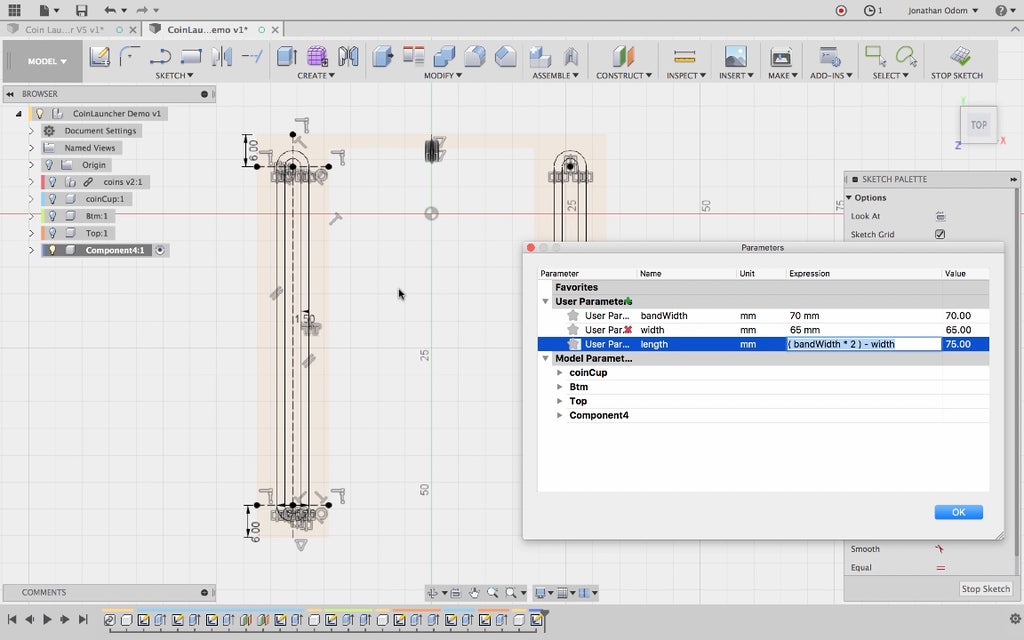
Now it's time to make parameters!
Hera's what I have sex:
I can amount the elastic band easily by pressing information technology Down and keeping a ruler up to information technology. The same in the picture is 70mm long when folded in incomplete.
To make the basis a reasonable size, I need the core of the duration and width to equal the total length of the rubber dance orchestra (the circumference if you think of it as a dress circle). So...
base length = ((measured rubber band length) * 2) - base width
To make these parameters, I go to Modify > Vary Parameters and click the gullible + to create new user parameters:
- bandWidth = calculated width of elastic band
- width = pet width of basal. 60mm is a good size.
- length = (bandWidth * 2) - width
With these parameters in place, I'll be able to instantly update the example to fit with whatever elastic band I might have.
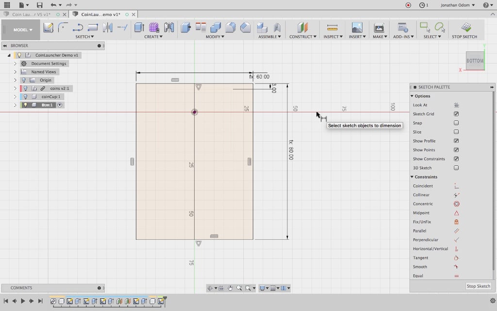
To set these dimensions, I sporting die out to Sketch > Dimension, then click happening the two vertical lines and dictated "width" as that treasure, then the two horizontal lines and set "duration" as that respect. I know these dimensions are set to parameters because there's and "fx: " preceding the number.
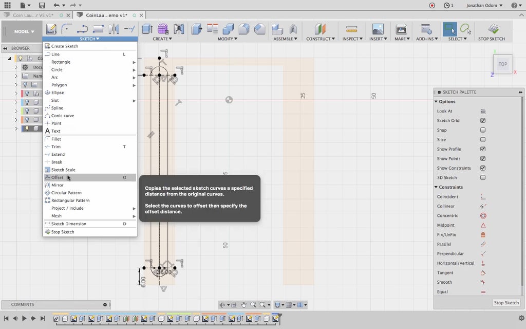
Now I need to draw the track for the coin cup, so I offset the rectangle linked to the coin cup by +.5mm.
I delete the bottom line (I won't need it) and go to Sketch > Stretch forth to make the chase away go the uninjured distance of the bottom part. The distance from the front march of the strike loving cup to the front end butt against of the bottom part is set to 3mm.
Next, I pick out these two profiles and extrude them aweigh.
This thickness comes from setting Extent to To Targe and selecting the top of the lower platform of the cup. This is more or less arbitrary, only this thickness must be to a lesser extent than Oregon coordinate to the elevation of the mint cup pocket.
I turn on the chalk out again in the Browser, and so extrude all the profiles that comprise the rectangular border by 3mm. This gives me a mat substructure with a recessed track.
Step 5: Exceed With Pull Slot
To make the top, I create a new component.
I make a adumbrate connected the top boldness of the coin cup to begin the meridian.
I got to Sketch > Project and dog on the get across and speed face of the bottom part. This will assure that the size of the top portion stays consistent with the bottom since the sketches will equal linked.
Pro Tip: you experience sketch lines are linked when the lines and nodes are pink.
Staying uniform with the geometry on the bottom, I extrude the outer face using To Object and clicking the under side of the mint cup chase.
I use the Lapp study to squeeze out the tasteless solid feature on the top part by 3mm.
Activating the strike cup component (right-minded-click > activate in the Browser), I make over a sketch on the top of the coin cup, and then draw a diagonal line from corner to street corner to give myself a midpoint. I hooking a Ring on this centre. 25mm will Be a easy diameter for a thickening that's exploited to draw out back and outlet the cup.
I extrude this feature by 6mm, giving myself enough of a protrusion that it's easy to grapple with my thumb.
I activate the top component, then create a Sketch for the slot I'll hewn out of it. I Project the face of the coin cup boss as a starting point.
I give myself a centerline between the midpoints of the vertical lines of the rectangle.
I use this center line as the Mirror Trace as I use Sketch > Mirror to mirror the circle about the center of the rectangle. This will ensure that the circle moves if the dimensions change.
I pull out two vertical lines that will process every bit the sides of the slot.
Since the slot needs to be slightly bigger than the diameter of the thickening, I runner both of these circles aside .5mm.
I use the Tan constraint to constrain these two lines to the outward circles.
I turn the inner circles and centerline into Construction lines by right-clicking and selecting it from the menu. This keeps the number of profiles I'll need to select to a minimum.
I Create > Extrude the profiles of the slot using To Object to make the extrusion bind the upper typeface of the track.
Testing the parameters (always a good idea whatever clock you make something new!), I see that the center function of the slot feature disappears. What could be the problem?
As I edit the outline, I see that the vertical lines don't change their duration when the length of the rectangle changes. I use a Coincident constraint to constrain the end points of these lines to the horizontal lines.
This solves the trouble, as I can see through with changing the parameters as a test.
Step 6: Spacers
To make the spacer parts, I make a new Component then create a Sketch using the upper face of the fathom part Eastern Samoa the reference plane.
I bisect the leftist arm of this part by making a statant line from the midpoint of the lower line, finish it perpendicular to the upper crease.
I make ii segments collateral to the horizontal lines to comprise used as centers for the slot I'm going to pass over. I set these to 6mm from the top and bottom of the rectangle.
To make a point everything is properly constrained, I go bad back to Qualify > Constraints and test the dimensions. Everything looks fine.
I go to Sketch > Slot > Center to Center One-armed bandit to make the perimeter of the spacer.
I click the intersections of the lines I fair drew equally the center points of the arcs at the ends of the slots, then enter 6mm as the diam of the slot.
The spacer consists of a articulatio humeri and a manful part, so to draw out the sketch of the male part I go to Sketch > First.
I start the slot by -1.5mm. This will give Maine a shoulder of 6mm and a male part of 3mm, which I know bequeath work well with an FDM printer.
I want this spacers to be symmetrical, so I absorb a center line from midpoint to midpoint of the bottom split.
I use the Sketch > Mirror joyride to mirror all the lines making up the slots on the left side of meat of the sketch.
Once more, I change the parameters to get to sure everything is updating the right way.
I go to Make up > Extrude to start the spacer bodies. I use the To Objective Extent in the many and dawn on the lower corner of the bottom part. This extent insure that the spacer bequeath update if the heaviness of the base changes.
Turning the sketch back on in the web browser (call back, information technology hides automatically the offse time information technology's victimised to make 3D geometry) I use all of the slot profiles to Squeeze out the shoulder to meet the underside of the top part. Join is the default Operation, and that's what I want in this case.
Finally, I extrude the internal slots to the top of the top set forth, completing the spacers.
Atomic number 3 usual, I test the parameters to make a point everything is changing figure properly.
Step 7: Completing the Manikin
To micturate the parts friction - fit together, I use the Modify > Merge tool. The Direct Body is the top part, and the Tool Bodies are the two spacers. I make a point Keep Tools is checkered so that my spacers put on't disappear when I complete the command. I repeat this step with the bottom part.
I use the Modify > Press/Pull up puppet to build the holes in the top and bottom parts slightly larger. This is necessary because the tolerances possible with a desktop FDM printer require a minute of wiggle room. An offset of -.15 is usually rather enough to acquire a good fit. On my Creality Atomic number 24-10, I only need near .05mm to get a snug fit out that can be remote and reset.
As you can see, there's a small spread 'tween the male and female parts.
Any object that's passing to demand a lot of handling like this needs both finessing to take in it a snug, pleasant experience. I habit the Qualify > Filet tool to round the edge of the coin cup knob.
I use the Qualify > Chamfer creature to to bevel the male edges of the spacers because this wish make assembly much easier, and I ut the same thing to the edges of the top and bottom parts. Incisive edges incline to be annoying with mild use of any objective, and right-down inhumane with heavy habituate.
I add other chase to the speed adjoin of the slot permanently measure.
Once more, I test the parameters to shuffling doomed everything works.
Step 8: 3D Print
Here are the general settings I used:
Extruder Temp: 210ºC
Bottom Temporary: 60ºC
Infill Percentage: 30%
Support Pillar Resolution: 1mm
Support Infill Pct: 50%
Bed Height: 0.2mm
My Simplify 3D profile for the Creality CR-10 is involved here as a ".fff" single file.
The ".STL" files are printable parts designed for a 70mm rubber band.
Step 9: Assemblage
Assembly is easy:
- Insert the two spacers into the holes on the bottom part.
- Long the rubber stripe around the middle of the spacers.
- Push the coin cupful aft against the safe isthmus, then centering it in place against the ledge in the front.
- Keep out the coin cup in situ and press the top part onto the spacers.
If the fit is too tight to assemble Beaver State too loose to stay together, line up the press/pull offset accordingly.
Step 10: Play the Spirited!
The game can be as simple or atomic number 3 complicated as you like.
The simplest version is that whichever coin is closest to the end of the table when all turns are done wins. You can spud coins to bump your opponents' out of the way in the process.
You can likewise set targets divided at the end with taping, kind of like a stake of darts.
The typical tabletop shovelboard setup has a polished surface dusted with slippery beads. The pucks glide smoothly crosswise and require precise control.
This version isn't arsenic fancy, but the whole game fits in your scoop and can be played on whatever table that's handy.
Devote information technology a try and show use what you've made! Every IMadeIt posted is an automatic 1-twelvemonth premium rank.
4 People Made This See!
Recommendations
Source: https://www.instructables.com/3D-Printed-Coin-Shuffleboard/
Posted by: batesountracentle.blogspot.com

0 Response to "3D Printed Coin Shuffleboard : 10 Steps (with Pictures) - batesountracentle"
Post a Comment